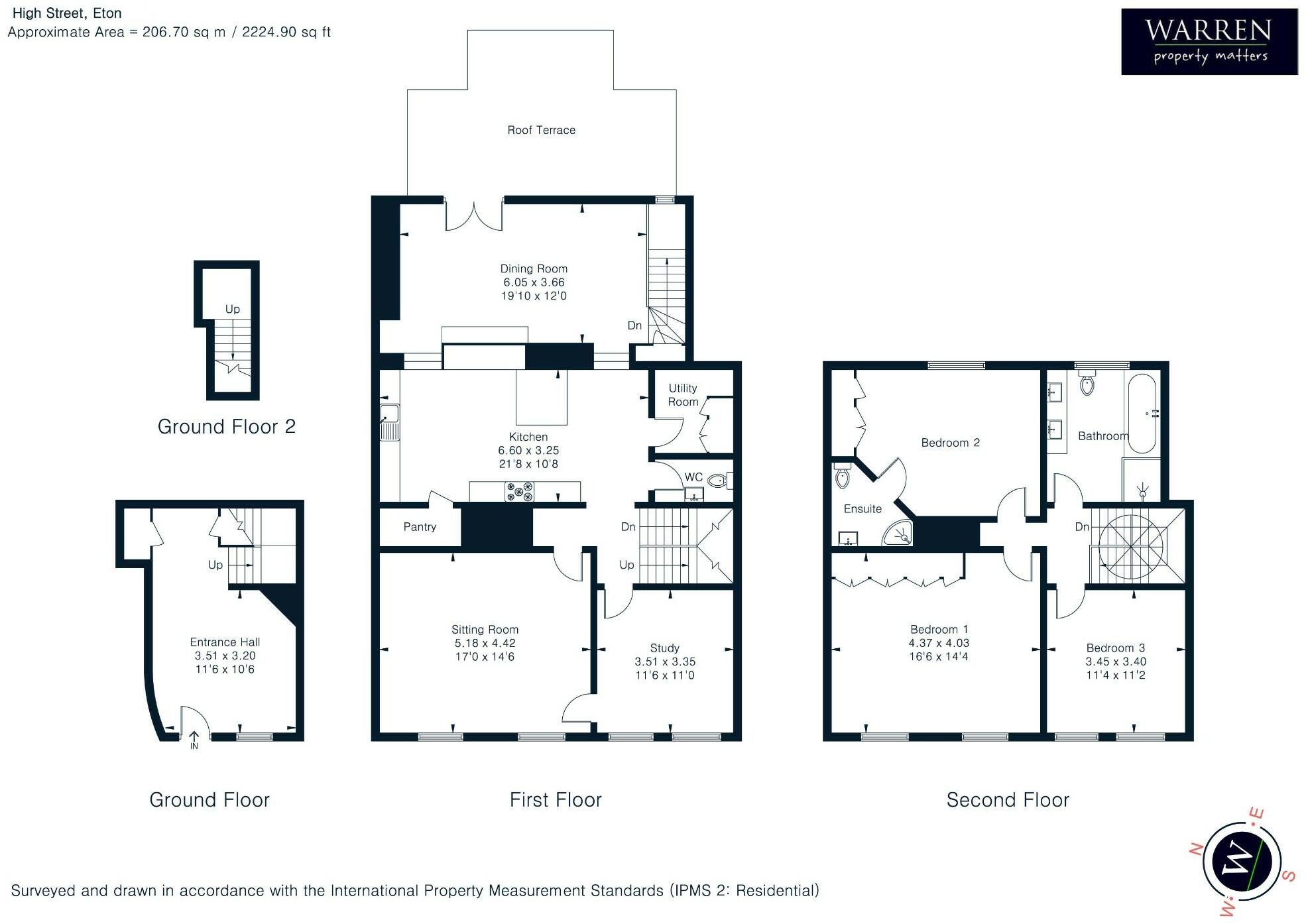
Property description
This exceptional three bedroom town house is situated in the heart of historic Eton, on the main High Street, close to Windsor Bridge providing an excellent lifestyle with all your needs on the door step. Stepping through the front door you immediately realise and admire this fabulous unique property with its impressive entrance hall with stairs leading to the first floor areas, directly ahead of you is the spacious bespoke designed kitchen with a beautiful island and breakfast bar in the centre of the kitchen offers ample prep space and a sociable hub for gatherings with steps down to the dining area flowing effortlessly to the welcoming roof terrace garden. There are rear stairs that lead down to the rear garden and courtyard.
The living room is filled with character, spacious with lots of light beaming through the tall sash windows, seperate study, perfect space for forking from home and from the landing stairs lead to the second floor landing, all three bedrooms, main bedroom with en suite shower, family bathroom, the property warmed throughout by gas fired central heating.
Outside there is a private patio garden with side opening and walk through to the gated car parking courtyard with electronic controlled sliding gate.
The High Street with its range of shops catering for day-to-day needs, a variety of restaurants include Gilbeys, Cotes Restaurant overlooks the River Thames, plentiful cafe bars, antique shops and more. Windsor is accessed via Windsor Bridge and offers more extensive shopping amenities, Theatre Royal is an attraction located opposite Windsor Castle and the many shops include Daniels. French Connection, The White Company, Michael Chell and the many different cultural restaurants.
Eton and Windsor are historic locations to be proud of; home to Eton College the largest boarding school in the UK and dates back to 1440. Eton College is famous for being the school of choice for generations of aristocracy. Windsor Castle was originally built by William the Conqueror in the 11th Century. Today it is the residence of choice for several members of the Royal family.The pageantry of the changing of the Guard at Windsor Castle happens several times a week. Windsor also has access to the 5000 acres of Windsor Great Park with its sweeping historic parkland, award winning gardens, ancient woodland and forest trails. Windsor is also host to numerous local events which include Windsor Horse Show, Windsor Dog Show, Swan Upping, Windsor on Ice, monthly Farmers markets and a full calendar of performances at Theatre Royal Windsor.
Sporting Leisure facilities are varied with golf courses at Wentworth, Datchet, Mill Ride and Royal Ascot, Horse Racing locally at Windsor and Ascot, the pinnacle of racing being Royal Ascot in the month of June, every season, attracting Worldwide interest from owners, trainers, jockeys and breeders and racing enthusiasts.
Boating along the River Thames a tranquil time to enjoy as feature in the Wind of the Willows production and nearby Windsor Great Park, the Long Walk and Deer Park.
No view better captures Windsor Great Park's royal grandeur than The Long Walk. No landscape better reveals its history than the Deer Park.
Windsor Great Park has hosted Royalty since William the Conqueror's victory at the Battle of Hastings. Over the centuries it was enjoyed for its riding, hunting and stunning scenery. It wasn't until William IV, however, that the Windsor Great Park as we know it was opened to the public, allowing visitors from far and wide to experience its splendour for themselves.
Created by King Charles II in 1682-85, this tree-lined avenue stretches almost 2.5 miles down to the ancient fortress of Windsor Castle, the oldest and largest occupied castle in the world.
The initial work included the buying up of land to connect Windsor Castle to Windsor Great Park and the purchase of 1,864 young Elm trees.
At the highest point, standing over the iconic view, is the famous Copper Horse statue depicting King George III. It was erected in 1831 to commemorate the King's significant contribution to Windsor Great Park.
Features
Floor Plans
Energy Class Information
-
Energetic class: D
-
EPC Current Rating: 65
-
EPC Potential Rating: 83
- A+
- A
- B
- C
- | Energy class DD
- E
- F
- G
- H
Similar Properties
Tangier Lane, Eton
- £625,000
- Beds: 2
- Bath: 1
- 667 Sq Ft
Brocas Street, Eton
- £1,250,000
- Beds: 3
- Baths: 2
- 1504 Sq Ft
Emlyn Buildings, Eton
- £695,000/OIRO
- Beds: 2
- Bath: 1
- 780 Sq Ft
Chaucer Close, Windsor
- £3,750/Monthly
- Beds: 4
- Baths: 3
- 1943 Sq Ft