Property description
An excellent opportunity to acquire a well-positioned mixed-use freehold building in the heart of Windsor, offering significant income and asset management potential. The property comprises three self-contained residential apartments - two studios and one one-bedroom duplex - together with a ground-floor commercial unit and additional basement storage.
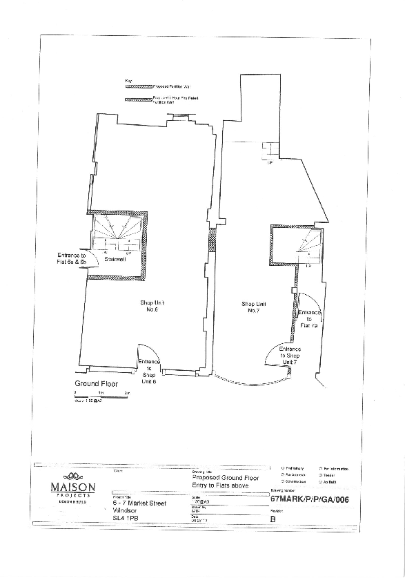
The property comprises a freehold end-of-terrace building arranged over ground, first and second floors. The accommodation consists of a ground-floor retail unit with three self-contained residential flats above.
Two of the residential flats (6A & 6B) are accessed via a secure gated entrance to the left-hand side of the retail unit, leading to an alleyway and enclosed staircase serving the upper floors. The third flat (7A) benefits from its own independent access directly from Market Street.
Tenure & Tenancy Information
The current occupational position is understood to be as follows, although prospective purchasers are advised to rely on the legal documentation and satisfy themselves in this regard:
The ground-floor retail unit is believed to have previously been let at £35,000 per annum and is currently vacant.
Two of the residential flats are currently vacant.
One residential unit is let on an Assured Shorthold Tenancy producing £1,050 per calendar month. The fixed term expired in March 2025 and the tenancy is now operating on a statutory periodic basis.
When fully let, the property was understood to have produced in the region of £73,400 per annum. However, buyers should make their own enquiries regarding the precise tenancy arrangements and income.
Property Highlights:
Mixed-use freehold with diversified income streams
Two vacant residential units and vacant commercial premises
One residential unit producing £1,050 pcm (periodic AST)
Duplex unit producing £1,200 pcm (periodic AST)
Prime central Windsor location
Basement storage offering additional operational flexibility
Strong local rental demand and capital growth prospects
The Location
Windsor is a highly sought-after historic market town with sustained rental demand and consistent investor interest, driven by its proximity to London, vibrant town centre and international tourism appeal. The town's private rental market and capital values continue to perform strongly within the South East investment landscape.
The property is situated on Market Street, positioned between Castle Hill and Church Lane in the very heart of Windsor, just moments from Windsor Castle. Windsor Town Centre offers an extensive range of amenities including Waitrose, Daniels, The White Company, Zara and a wide selection of cafés, bars and restaurants.
Excellent transport connections are available via Windsor & Eton Riverside (South Western Railway services to London Waterloo) and Windsor & Eton Central (GWR services to London Paddington via Slough). Road connections are convenient via the A332 and M4, providing easy access to London, Heathrow and the wider motorway network.
Features
Floor Plans
Energy Class Information
-
Energetic class: E
- A+
- A
- B
- C
- D
- | Energy class EE
- F
- G
- H
Similar Properties
Tangier Lane, Eton
- £625,000
- Beds: 2
- Bath: 1
- 667 Sq Ft
Brocas Street, Eton
- £1,250,000
- Beds: 3
- Baths: 2
- 1504 Sq Ft
Emlyn Buildings, Eton
- £695,000/OIRO
- Beds: 2
- Bath: 1
- 780 Sq Ft
Chaucer Close, Windsor
- £3,750/Monthly
- Beds: 4
- Baths: 3
- 1943 Sq Ft